稲田新町1丁目 店舗付き中古戸建

1,000万円

大阪府東大阪市稲田新町1丁目

片町線「徳庵」駅徒歩7分

地下鉄中央線「長田」駅徒歩25分

地下鉄中央線「高井田」駅徒歩27分

価格
1,000万円
間取り/建物面積
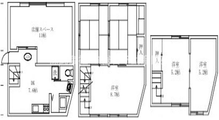
5DK/101.57㎡
所在地
大阪府東大阪市稲田新町1丁目
築年
1977年7月(築48年)
駐車
交通

片町線徳庵」駅 徒歩7分

地下鉄中央線長田」駅 徒歩25分

地下鉄中央線高井田」駅 徒歩27分

稲田新町1丁目 店舗付き中古戸建の基本情報

物件名
稲田新町1丁目 店舗付き中古戸建
価格
1,000万円
建物面積
101.57㎡
土地面積
14.45坪(47.79㎡)
築年月
1977年7月(築48年)
総戸数
-
所在地
大阪府東大阪市稲田新町1丁目
交通

片町線徳庵」駅 徒歩7分

地下鉄中央線長田」駅 徒歩25分

地下鉄中央線高井田」駅 徒歩27分

稲田新町1丁目 店舗付き中古戸建の詳細情報

設備条件
  • 閑静な住宅地
  • 駐輪場
設備(その他)
    -
駐車場/月額
無/-
土地権利
所有権
国土法届出
不要
用途地域
第一種住居
取引態様
仲介
引渡し
即時

稲田新町1丁目 店舗付き中古戸建で募集中の物件

  1. 30.72坪 (101.57㎡)

    1,000万円(69.2万円/坪)

近隣の物件

  1. 東大阪市寺前町1丁目

    2LDK (56.76㎡)

    1,230万円

  2. 東大阪市金岡3丁目

    2SLDK (124.38㎡)

    3,780万円

  3. 東大阪市御厨東1丁目

    4LDK (99.37㎡)

    3,480万円

  4. 東大阪市大蓮東3丁目

    4LDK (86.32㎡)

    2,830万円

よく見られている物件

  1. 東大阪市池島町4丁目

    3DK (57.22㎡)

    430万円

  2. 東大阪市寺前町1丁目

    2LDK (56.76㎡)

    1,230万円

  3. 東大阪市鷹殿町

    3LDK (101.52㎡)

    2,780万円

  4. 東大阪市花園東町1丁目

    4LDK (111.60㎡)

    1,880万円

稲田新町1丁目 店舗付き中古戸建

お気軽にお問い合わせください

無料お問い合わせ

SR総合不動産売却

072-966-3050

10:00~19:00

(休:(第二・第四火曜日)毎週水曜日)